¹«Ô¢Ã÷ÁÁÓÖ¿ª·Å£¬»¹Ïñ¸ö¼ÒÍ¥ÓÎÀÖ³¡-Éú»î³£Ê¶
¡¡¡¡Õâ¼ą̈Í幫ԢÃ÷ÁÁÓÖ¿ª·Å£¬»¹Ïñ¸ö¼ÒÍ¥ÓÎÀÖ³¡

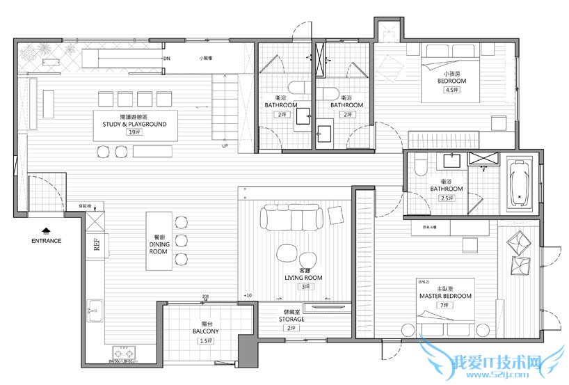
¡¡¡¡Ì¨Íå HAO design ¹¤×÷ÊÒ×î½üÔÚ¸ßÐÛÊÐÍê³ÉÁËÒ»¼ä¹«Ô¢µÄÉè¼Æ£¬¼òµ¥µÄ´ÓµÚÒ»Ó¡ÏóÀ´¸ÅÀ¨£¬Ò²ÐíÎÒÃÇ¿ÉÒÔ°ÑÕâÖÖ×°ÐÞ³ÆÖ®Îª¡¸¼ÒÍ¥ÓÎÀÖ³¡¡¹¡£ÒµÖ÷ÊÇÒ»¶ÔÄêÇáµÄ·ò¸¾£¬ÎªÁËÈÃËûÃÇÄܹ»»¨¸ü¶àµÄʱ¼äÓëÅ®¶ùÔÚÒ»Æð£¬Éè¼ÆÍŶӽ«ÕûÌåÉè¼ÆµÄÖØµã·ÅÔÚÖ¸¶¨µÄÐÝÏÐÇøÓòÉÏ£¬²¢½«Õû¸ö¹«Ô¢´òÔì³ÉÒ»¸ö¿ª·ÅʽµÄÉú»î¿Õ¼ä¡£

¡¡¡¡Ò»½øÈëסլ£¬Äã¾Í¿ÉÒÔÓÃæ×²¼ûÕâ¼ä¹«Ô¢ÄÚµÄÖÐÐÄ¡¸ÐÝÏÐÓÎÀÖÇø¡¹¡£ÕâÀïµÄÖØµãÊÇÒ»¸öľ֯»¬ÌÝ£¬Ëü¿ÉÒÔÔÚ²»±ØÒª»òÅ®º¢³¤´óºóºÜÈÝÒ׵IJðж¡¢ÊÕÆð£¬Îª¹«Ô¢Ìṩ¸ü¶à¿ÉÓõĵØÃæ¿Õ¼ä¡£Î§ÈÆ×Å»¬ÌÝ£¬ÖÜΧÓиÖÇÙÒôÀÖÇø¡¢¼Ü¸ßµÄ¶ùͯÓÎÀÖÎÝ£¬ÐγÉÒ»¸öÎÂܰµÄÓÎÀÖÇø¡£

¡¡¡¡ÓÎÀÖÇø»¹ÉèÓÐÒ»Õų¤³¤µÄ¶à¹¦Äܹ¤×÷̨£¬º¢×Ó¿ÉÒÔÔÚÕâÀïдд»»£¬¼Ò³¤Ò²¿ÉÒÔ×øÔÚÕâÒ»±ß¿´×ź¢×ÓÍæÀÖ£¬Ò»±ßÔĶÁ¡¢¹¤×÷¡¢ÁÄÌì;ÔÚÓн϶à¿ÍÈËÀ´·Ãʱ£¬ÕâÕų¤Ì¨Ò²Äܵ±×÷²Í×À¡£

¡¡¡¡»¬ÌÝǰÉèÓÐÒ»¸ö³äÂú×ÅÂÌÒâµÄÖ²Îï½ÇÂä¡¢ºÍÓÐȤµÄÊÒÄÚÇïǧ£¬Õâ¸öÇøÓò½ôÁÚ´ó´°¿Ú£¬Óзdz£³ä×ã¡¢¹âÁÁµÄ×ÔÈ»¹âÏß¡£

¡¡¡¡Í¨Íù»¬ÌݵÄͨµÀ±»ÕûÌå̧¸ß£¬Éè¼Æ³ÉÁËССµÄ¶ùͯÓÎÀÖÎÝ£¬¶øÓÎÀÖÎݵ×ÏÂÒòΪ¿¿×Å´°»§£¬Ôò³ÉÁËÀàËÆÓÚÆ®´°µÄÊæÊÊÐÝÏ¢Çø¡£

¡¡¡¡¹«Ô¢´óÃÅÅԱߵÄǽ±Ú±»Ë¢³ÉÁËÂÌÉ«µÄºÚ°åǽ£¬×÷ΪÕû¸ö¼ÒÍ¥µÄÁôÑ԰壬²¢¸øº¢×ÓÌṩÁËÒ»¸ö×ÔÓÉͿѻµÄÇøÓò¡£

¡¡¡¡³ø·¿±»¿´×÷Êǹ«Ô¢µÄ¹«¹²¿Õ¼äÓë˽È˿ռäÖ®¼äµÄ¹ý¶ÉÇøÓò£¬¾«ÐÄÉè¼ÆµÄ´æ´¢¸ñÎ§ÈÆ×ÅÒ»¸öµºÓìµ¥Ôª£¬Õâ¸ö¸ß¸ßµÄСµºÃæ¼È¿ÉÓÃÓÚ´¦Àíʳ²Ä£¬Ò²¿ÉÖ±½ÓÓÃÓھͲ͡£

¡¡¡¡¼¸¸öÀÁÈËɳ·¢£¬Ò»Ì¨µçÊÓ£¬¹¹×ÅÁËÒ»¸ö¼ò¼òµ¥µ¥µÄ¿ÍÌüºÍÐÝÏ¢Çø¡£

¡¡¡¡¸÷ÖÖ¸÷ÑùµÄ´æ´¢ÊÕÄɿռä±é²¼¹«Ô¢µÄ¸÷¸ö½ÇÂä¡£

¡¡¡¡ÕâÀïÔòÊÇÒµÖ÷·ò¸¾µÄÖ÷ÎÔ¡£





- Éç½»°µÓïÄã¶®¶àÉÙ£¿-Éú»î³£Ê¶
- 2015ÇéÈ˽ÚËÍʲôºÏÊÊ-Éú»î³£Ê¶
- ÓÐÄÄЩϸ΢µ«ÊǸßЧÓÐÓõÄϰ¹ß£¿-Éú»î³£Ê¶
- ¼ÒÍ¥À¬»øÍ°Óü¸¸ö±È½ÏºÃ-Éú»î³£Ê¶
- Õô¼¦µ°¸þ±È½ÏÄ۵ķ½·¨-Éú»î³£Ê¶
- ÒÔÒôÀÖΪ°é£¬ÓëÎÄ×ÖΪÎé-Éú»î³£Ê¶
- 100¸öÈÕ³£½»¼Ê¼¼ÇɾÑé×ܽá-Éú»î³£Ê¶
- ÐǰͿËÎÒÄܳ·ÏúÐÇÏí¿¨Óë¼ÈÓÐÐÇÏí¾ãÀÖ²¿ÕÊ»§µÄ¹ØÁª
- ¼¦µ°ºÃ°þµÄ·½·¨-Éú»î³£Ê¶
- ÐÍÄÐ˽·¿58ƽÃ×»ì´î·çµ¥Éí¹«Ô¢-Éú»î³£Ê¶
- ÆÀÂÛÁÐ±í£¨ÍøÓÑÆÀÂÛ½ö¹©ÍøÓѱí´ï¸öÈË¿´·¨£¬²¢²»±íÃ÷±¾Õ¾Í¬ÒâÆä¹Ûµã»ò֤ʵÆäÃèÊö£©
-
