1.8米宽的超窄长方屋-生活常识
时间:2016-03-26 20:21 来源: 我爱IT技术网 作者:net+
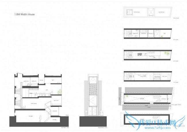
1.8米宽的超窄长方屋

座落在日本东京市的丰岛区,「1.8M Width House」是由 YUUA 建筑设计事务所带来的一幢狭长的长方体住宅,真正实如其名的只有1.8米的宽度。整幢房屋甚至可说就是在相邻两幢房屋间的「走道」上拨地而起,超过一米八的人都无法在住宅内完全的横着躺下 。在面向街道的正面 ,设计师创建了巨大的透明门面,从而允许自然光可以肆无忌惮的进入整个建筑内。而在整体的布局与室内设计上,建筑师的宗旨是创建一座能够让人与猫幸福和谐的生活、并游戏嬉闹的房屋。











- 评论列表(网友评论仅供网友表达个人看法,并不表明本站同意其观点或证实其描述)
-
