欢迎您访问52IJ教育培训网,今天小编为你分享的数学方面的学习知识是通过网络精心收集整理的:“桥梁抗震规范_螺旋箍筋的体积配箍率怎么计算?桥梁抗震规范中对应的...[数学]”,注意:所整理内容不代表本站观点,如你有补充或疑问请在正文下方的评论处发表。下面是详细内容。
定义:在一个箍筋间距内的箍筋体积(去除重叠部分)除以混凝土体积.如一个截面为400mm*400mm的构件,配箍筋4φ10@100,箍筋间距为100mm,在100mm范围内,箍筋面积为3.14*5^2,总长度8*400=3200,则箍筋体积=3.14*25*3200;混凝土体积400*400*100,故体积配箍率=(3.14*25*3200)/(400*400*100)
具体见《混凝土结构设计规范》7.8.3条
其他类似问题
问题1:螺旋箍筋具体怎么计算[数学科目]
有一个非常简易适用的公式:L=√{S^2+[л(R-2C)]^2}/S^2
其中S—螺旋箍筋螺距
R—桩直径
л——3.14,圆周率
C—保护层厚度
L—螺旋箍筋长度
其实其中:(R-2C)为螺旋箍筋的螺旋半径,实际上是被简化了,应该是(R-2C+d/2)是最精确的计算,其中d是箍筋的直径,但是由于箍筋直径d非常小,所以一般计算时可以忽略不计.
这个公式实际上就是把螺旋成一个直角三角形,箍筋间距S为三角形一个直角边,螺旋圆周长2л(R-2C+d/2)为三角形的另一个直角边,求斜边长(也就是螺旋箍筋的长度L).
由三角形公式C^2=A^2+B^2公式推导,L=√[S^2+(R-2C+d)^2],公式简化后就是L=√{S^2+[л(R-2C)]^2}/S^2.
问题2:螺旋箍筋的长度怎么算?
基本原理:一圈螺旋筋相当于 直角三角形的斜边 ,圆的周长和间距相当于两直角边.
可推导公式:
L=H/h×√(D-2a+d)2π2+h2
式中:L-螺旋箍总长度(m)(其长度是连续不断的)
h-螺旋箍螺距(m)
D-构件断面直径(m)
2a-保护层厚度(m)
d-螺旋箍直径(m)
(D-2a+d)2π2+h2是在根号内的,且小括号后的"2"是整个小括号内数字的平方,π后的"2"是π的平方,h后的"2"是h的平方的意思.
或者:L=N*SQRT(h*h+(3.14*D)*(3.14*D))D:直径N:螺旋筋的环数h:间距还有:SQRT(H2+(π×D×(H/h))2)+ π×D×3+12.5dH:构件高h:螺旋箍螺距
D:螺旋箍直径
d:螺旋箍钢筋直径
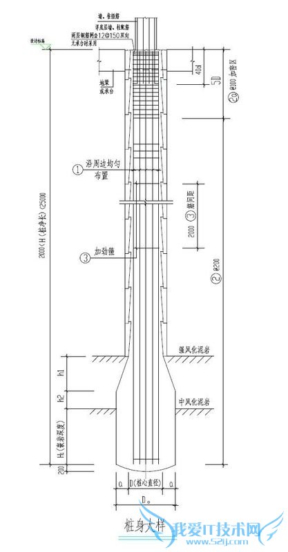
问题3:人工挖孔桩的纵筋 箍筋 螺旋箍筋加劲箍怎么计算

挖孔桩纵筋计算式:
kg=(H –c+La+f)×n×(0.00617×d主筋2)
=(5.3-0.04+0+0.015×14)×12×(0.00617×142)=79.38kg
挖孔桩螺旋箍筋计算式:
kg=[(H-H1)/e×+H1/e1×)]×0.00617×d2
=[(5.3-1.5)/0.25×
+1.5÷0.1×)]
×0.00617×82
=35.347kg
挖孔桩加劲筋计算式:
Kg=[π× (D-2×C-2×d主筋-d加劲)+10×d加劲]×n×0.00617*142
=[3.14×(1.0-2×0.04-2×0.014-0.014)+10×0.014]×4×(0.00617×142)=14.013kg
V土:土方体积 V松:松次坚石体积 V普:普坚石体积
V砂:流砂体积 r1:桩半径 r:扩底半径 π:圆周率
b:护壁上口厚度 b1:护壁下口厚度
H土:土层高度 H砂:流砂高度 H松:松次石高度
H普:普坚石高度 H普1:扩底直段高度
H普2:扩底斜段高度 a: 定额规定的充盈系数(2公分)
Kg:钢筋总重量 H:桩芯砼高度(基顶标高-基底标高)
H1 :箍筋加密长度 c:保护层厚度(如图纸无规定,按规范)
e:非加密间距 e1:加密间距 f:弯折长度(如图纸无规定,按规范)
D:桩直径 La:锚固长度 n:根数
d主筋:主筋直径 d :箍筋直径 d加劲:加劲筋直径
(0.00617*d2)指钢筋的理论重量
问题4:直径800的箍筋笼,求螺旋箍筋长度怎么算?桩长29米,8@200,加密区4000,最好把数字带上![数学科目]
直径800的箍筋笼,箍筋平面圈的外径800mm,则8mm 钢筋中心线一圈的直径是800-8=792.一个平面圈的长度=3.14×792=2488.1(mm),画一条水平线段,长2488.1mm,作为直角三角形的底边,在末端做垂直线,长200mm,作为直角三角形的高,画斜边构成直角三角形.此时,斜边的长,就是@200段一圈螺旋箍的长,同样计算加密区段的一圈螺旋箍的长.自己分别算算各多少个箍各乘多少,加上搭接头(需要接头时)就是答案.我不可以代替你,自己会了免得你下次又求人!
问题5:螺旋箍筋计算公式不要给我下面的答案 我看不懂,我就纳闷了这么多人连个公式都编写不好嘛,写的都什么跟什么啊,要根号就跟号 为什么又来个对号 2次方就2次方来个上标不会吗,最好能给个[数学科目]
有一个非常简易适用的公式:L=√{S^2+[л(R-2C)]^2}/S^2
其中S—螺旋箍筋螺距
R—桩直径
л——3.14,圆周率
C—保护层厚度
L—螺旋箍筋长度
其实其中:(R-2C)为螺旋箍筋的螺旋半径,实际上是被简化了,应该是(R-2C+d/2)是最精确的计算,其中d是箍筋的直径,但是由于箍筋直径d非常小,所以一般计算时可以忽略不计.
这个公式实际上就是把螺旋成一个直角三角形,箍筋间距S为三角形一个直角边,螺旋圆周长2л(R-2C+d/2)为三角形的另一个直角边,求斜边长(也就是螺旋箍筋的长度L).
由三角形公式C^2=A^2+B^2公式推导,L=√[S^2+(R-2C+d)^2],公式简化后就是L=√{S^2+[л(R-2C)]^2}/S^2.
由于级别太低,积分不够插入图片,公式凑合着看吧,可以参考以下文件:http://wenku.baidu.com/view/de99926925c52cc58bd6bee1.html
- 评论列表(网友评论仅供网友表达个人看法,并不表明本站同意其观点或证实其描述)
-
